019 Maison vigneronne, Mont-sur-Rolle
Type de mandat: Mandat direct, rénovation
Maître d’ouvrage: Privé
Projet de l’ouvrage: 2025
Patrimoine: Objet d’importance locale (note 3)
Année de construction: 1820
Programme: Logement
Architecture: Djurdjevic Architectes Sàrl, Lausanne
Direction de travaux: Djurdjevic Architectes Sàrl, Lausanne
Démolition: Musitelli Construction SA, Romanel-sur-Morges
Plâtrerie/peinture/tapisserie: FRStaff SA, Renens
Toile tendue: Abrium Sàrl, Renens
Menuiserie: APF Menuiserie SA, Etoy
Carrelage: Fedele carrelage Sàrl, Rolle
Sanitaire: Wurlod & Roland Sàrl, Rolle
Chauffage: Blanchard SA, Perroy
Electricité: CIEL Electricité SA, Signy-Centre
Nettoyage: eco2net SA, Yverdon-les-Bains
Photographies: Douglas Mandry, Zürich
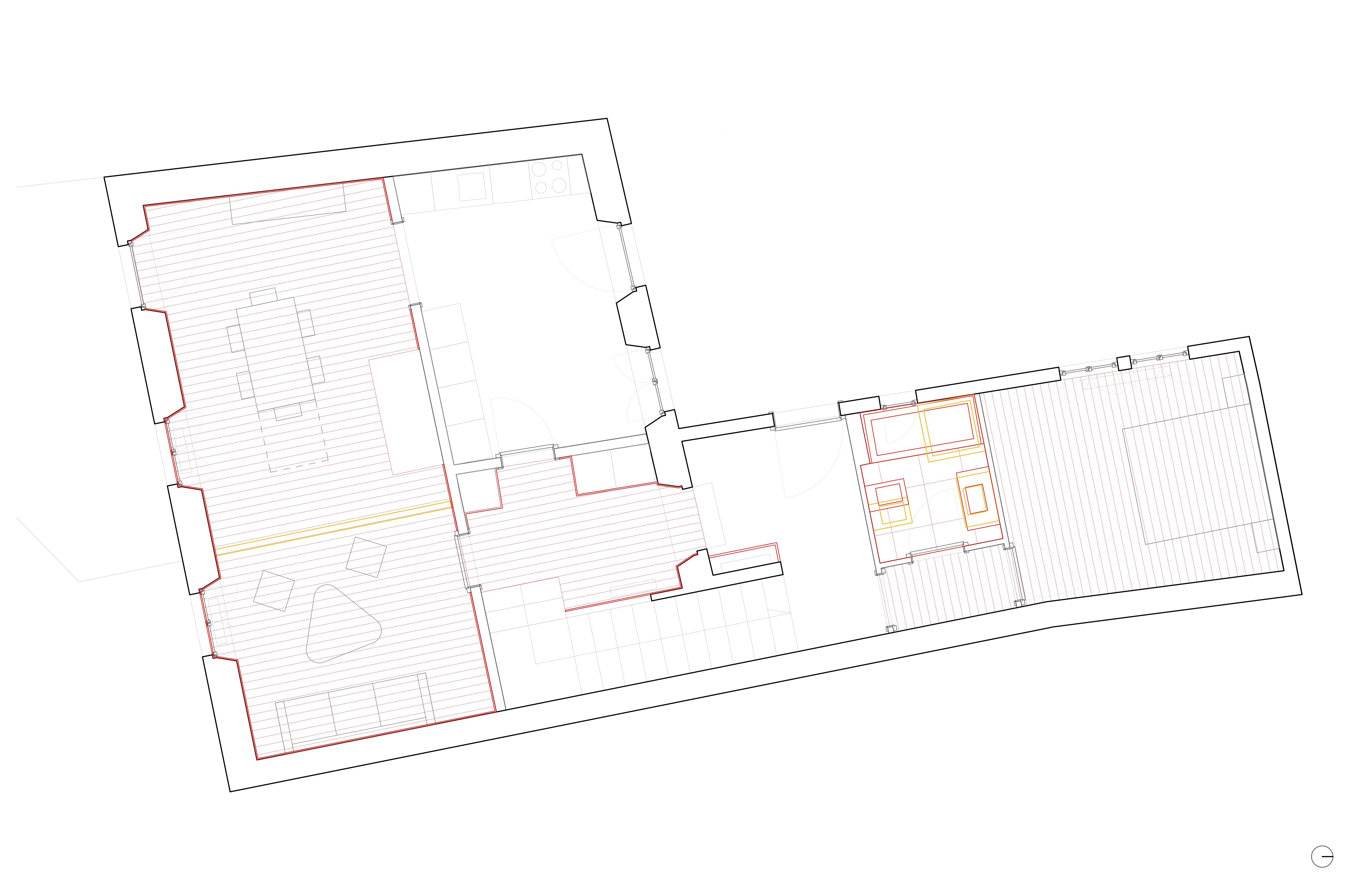
Révéler l’existant
Bâtisse historique construite en 1820, la maison a fait l’objet d’une rénovation en 1992. Les interventions successives ont progressivement masqué plusieurs éléments patrimoniaux, notamment les plafonds d’origine et les poutres en bois massif, dissimulées sous deux faux-plafonds successifs. Les salles de bains, également non d’origine, avaient été recréées à cette époque dans un style aujourd’hui dépassé.
Le projet s’est inscrit dans une démarche de lecture et de révélation du bâti existant, à la manière d’une approche archéologique. Des sondages ont permis d’identifier les éléments d’origine pouvant être remis en valeur. Dans le séjour et la salle à manger, la dépose des faux-plafonds a ainsi révélé de magnifiques poutres en bois massif, aujourd’hui rendues apparentes. Une toile tendue entre les poutres permet de les détacher visuellement sur un fond blanc, évitant la concurrence avec un plancher historique et renforçant leur présence.
Continuité d’espaces
Les revêtements de sol existants, non d’origine, ainsi que l’ensemble des seuils entre les pièces ont été déposés. Un plancher continu en chêne massif a été posé sur l’ensemble des étages, sans rupture de niveau, afin de réduire la fragmentation spatiale. Les transitions entre les espaces se font désormais de manière fluide, la différenciation reposant sur les usages et le traitement spécifique des façades intérieures propres à chaque pièce.
L’ensemble des boiseries — portes, fenêtres, cadres et plinthes — a été traité de manière homogène dans tous les espaces. Ce choix permet une lecture claire et continue du travail fin du bois et des moulures. La cheminée a également été rénovée et retravaillée afin de s’inscrire plus naturellement dans la palette chromatique et les tonalités de l’espace de vie.
Salles d’eau contemporaines
Les deux salles de bains ont été entièrement repensées. Dans la salle de bains invités, le faux-plafond a été supprimé afin de révéler les poutres en bois massif. La niche de bain a été conçue comme l’intérieur d’une pierre précieuse : ses parois sont entièrement revêtues de tomettes vertes, créant un contraste affirmé avec le reste de la pièce, volontairement plus neutre.
À l’étage, la salle de douche a été entièrement réorganisée afin d’augmenter sa surface et d’améliorer son accessibilité. Une niche de douche a été créée dans une partie du couloir, libérant l’espace nécessaire à l’intégration d’un grand meuble avec vasque intégré et généreux miroir. Cet espace est désormais traversant, accessible à la fois depuis le dressing et le couloir, bénéficiant de lumière naturelle et offrant une circulation continue autour du noyau de cheminée, autrefois desservi par un couloir central en épi.
Caractère domestique
Les matériaux et les teintes ont été choisis pour instaurer une atmosphère chaleureuse et accueillante. L’ensemble du projet vise à redonner à la maison son esprit domestique et familial d’antan, en créant un intérieur enveloppant, à la fois authentique et contemporain.
Type de mandat: Mandat direct, rénovation
Maître d’ouvrage: Privé
Projet de l’ouvrage: 2025
Patrimoine: Objet d’importance locale (note 3)
Année de construction: 1820
Programme: Logement
Architecture: Djurdjevic Architectes Sàrl, Lausanne
Direction de travaux: Djurdjevic Architectes Sàrl, Lausanne
Démolition: Musitelli Construction SA, Romanel-sur-Morges
Plâtrerie/peinture/tapisserie: FRStaff SA, Renens
Toile tendue: Abrium Sàrl, Renens
Menuiserie: APF Menuiserie SA, Etoy
Carrelage: Fedele carrelage Sàrl, Rolle
Sanitaire: Wurlod & Roland Sàrl, Rolle
Chauffage: Blanchard SA, Perroy
Electricité: CIEL Electricité SA, Signy-Centre
Nettoyage: eco2net SA, Yverdon-les-Bains
Photographies: Douglas Mandry, Zürich
Révéler l’existant
Bâtisse historique construite en 1820, la maison a fait l’objet d’une rénovation en 1992. Les interventions successives ont progressivement masqué plusieurs éléments patrimoniaux, notamment les plafonds d’origine et les poutres en bois massif, dissimulées sous deux faux-plafonds successifs. Les salles de bains, également non d’origine, avaient été recréées à cette époque dans un style aujourd’hui dépassé.
Le projet s’est inscrit dans une démarche de lecture et de révélation du bâti existant, à la manière d’une approche archéologique. Des sondages ont permis d’identifier les éléments d’origine pouvant être remis en valeur. Dans le séjour et la salle à manger, la dépose des faux-plafonds a ainsi révélé de magnifiques poutres en bois massif, aujourd’hui rendues apparentes. Une toile tendue entre les poutres permet de les détacher visuellement sur un fond blanc, évitant la concurrence avec un plancher historique et renforçant leur présence.
Continuité d’espaces
Les revêtements de sol existants, non d’origine, ainsi que l’ensemble des seuils entre les pièces ont été déposés. Un plancher continu en chêne massif a été posé sur l’ensemble des étages, sans rupture de niveau, afin de réduire la fragmentation spatiale. Les transitions entre les espaces se font désormais de manière fluide, la différenciation reposant sur les usages et le traitement spécifique des façades intérieures propres à chaque pièce.
L’ensemble des boiseries — portes, fenêtres, cadres et plinthes — a été traité de manière homogène dans tous les espaces. Ce choix permet une lecture claire et continue du travail fin du bois et des moulures. La cheminée a également été rénovée et retravaillée afin de s’inscrire plus naturellement dans la palette chromatique et les tonalités de l’espace de vie.
Salles d’eau contemporaines
Les deux salles de bains ont été entièrement repensées. Dans la salle de bains invités, le faux-plafond a été supprimé afin de révéler les poutres en bois massif. La niche de bain a été conçue comme l’intérieur d’une pierre précieuse : ses parois sont entièrement revêtues de tomettes vertes, créant un contraste affirmé avec le reste de la pièce, volontairement plus neutre.
À l’étage, la salle de douche a été entièrement réorganisée afin d’augmenter sa surface et d’améliorer son accessibilité. Une niche de douche a été créée dans une partie du couloir, libérant l’espace nécessaire à l’intégration d’un grand meuble avec vasque intégré et généreux miroir. Cet espace est désormais traversant, accessible à la fois depuis le dressing et le couloir, bénéficiant de lumière naturelle et offrant une circulation continue autour du noyau de cheminée, autrefois desservi par un couloir central en épi.
Caractère domestique
Les matériaux et les teintes ont été choisis pour instaurer une atmosphère chaleureuse et accueillante. L’ensemble du projet vise à redonner à la maison son esprit domestique et familial d’antan, en créant un intérieur enveloppant, à la fois authentique et contemporain.






















